2. OG; 4.5 Zimmer; Nr. 5 - MSPROJECTS BAU UND VERKAUF
Direkt zum Seiteninhalt
Hauptmenü:
Homepage
Döttingen
PDF Dokumentation
Gesamtprojekt
Parzelle
Google Karte
Situation
Visualisierungen
Tiefgarage
1. OG; 4.5 Zimmer; Nr. 3
1. OG; 3.5 Zimmer; Nr. 4
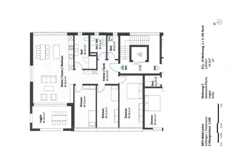
2. OG; 4.5 Zimmer; Nr. 5
Dachgeschoss 3.5 Zimmmer; Nr. 7
Dachgeschoss 3.5 Zimmer; Nr. 8
Preise
Wettingen Dorf
PDF Dokumentation
Gesamtprojekt
Perspektive
Model
Haus A Umbau
Bild
Haus B Anbau (Neubau)
Anbau / Neubau an Haus A
Obergeschoss B 3
Dachgeschoss B 5
Haus C Neubau
Haus C freistehend
Obergeschoss C 4
Dachgeschoss C 5
Kontakt
Kontaktdaten
2. OG; 4.5 Zimmer; Nr. 5
Döttingen
Homepage
|
Döttingen
|
Wettingen Dorf
|
Kontakt
|
Generelle Seitenstruktur
Zurück zum Seiteninhalt
|
Zurück zum Hauptmenü
Um diese Website nutzen zu können, aktivieren Sie bitte JavaScript.